Mee­ting- und Kon­fe­renz­raum in in­spi­rie­ren­der Um­ge­bung

Gut zu er­rei­chen und doch mit dem nö­ti­gen Ab­stand zum Ta­ges­ge­schäft bie­tet das Land­gut Hir­zel ei­ne ein­zig­ar­ti­ge Lo­ca­ti­on für Bu­si­ness-Work­shops, Ge­schäfts­mee­tings und Kon­fe­ren­zen. 

Man­che Be­spre­chun­gen brau­chen mehr als die ge­wohn­te Um­ge­bung des Bü­ros. Sie be­nö­ti­gen einen Ort, der fri­sche Ide­en an­regt. Un­ser Pa­vil­lon bie­tet die­sen be­son­de­ren Rah­men: Die weit­läu­fi­ge Land­schaft auf dem Hir­zel spen­det wohl­tu­en­de Ru­he, wäh­rend der Aus­blick über den Zu­ger­see bis in die Ber­ge neue Ho­ri­zon­te er­öff­net. 

Ob Ta­gun­gen, Stra­te­gie­mee­tings, Krea­tiv-Work­shops oder fo­kus­sier­te Brain­stor­mings – der licht­durch­flu­te­te Pa­vil­lon mit raum­ho­hen Fens­tern bie­tet einen in­spi­rie­ren­den Ort für kon­struk­ti­ven Aus­tausch und kon­zen­trier­te Zu­sam­men­ar­beit. Rund 30 Mi­nu­ten von Zü­rich, Zug oder Rap­pers­wil ent­fernt, er­mög­licht er neue Per­spek­ti­ven auf das Dai­ly Bu­si­ness. Un­se­re his­to­ri­sche Vil­la er­gänzt das An­ge­bot mit kom­for­ta­blen Über­nach­tungs­mög­lich­kei­ten für mehr­tä­gi­ge Kon­fe­ren­zen.

Aus­stat­tung un­se­res Kon­fe­renz- und Mee­tin­graums

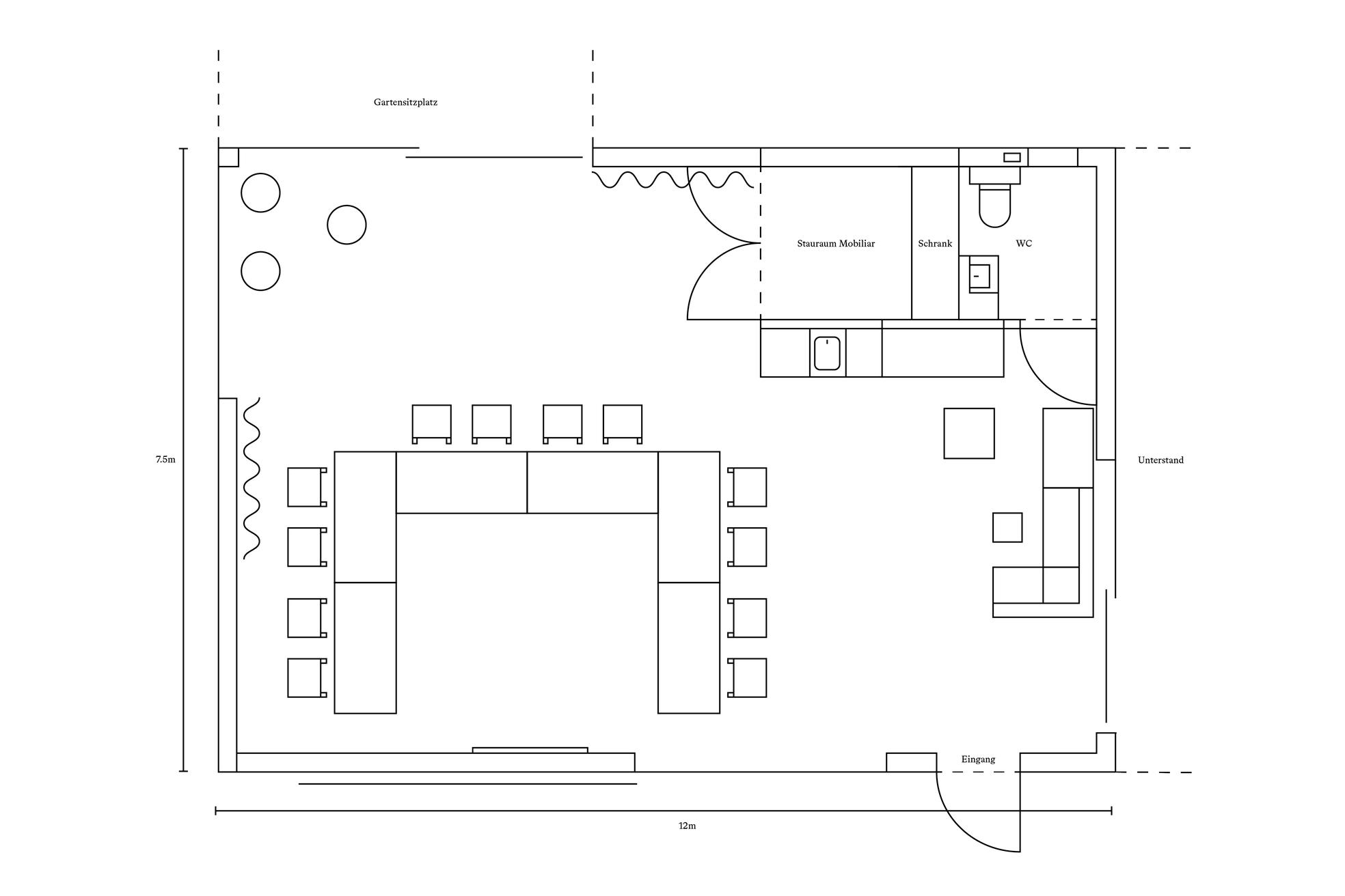
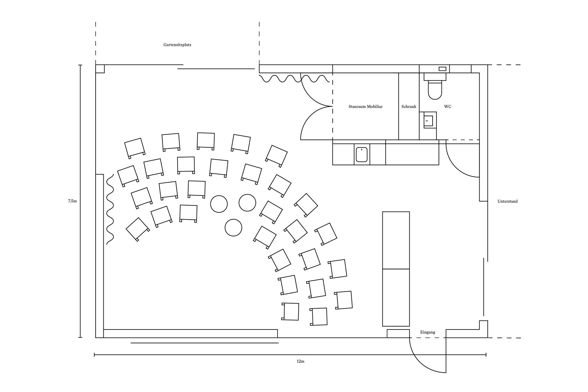
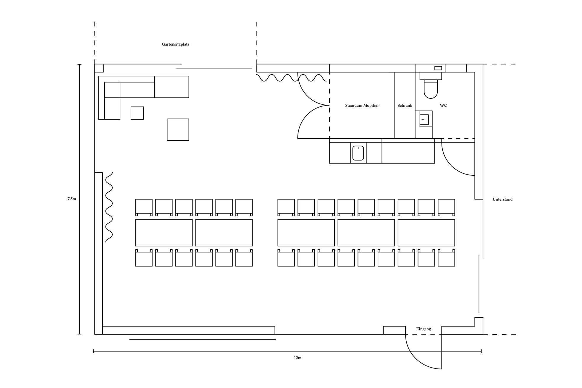
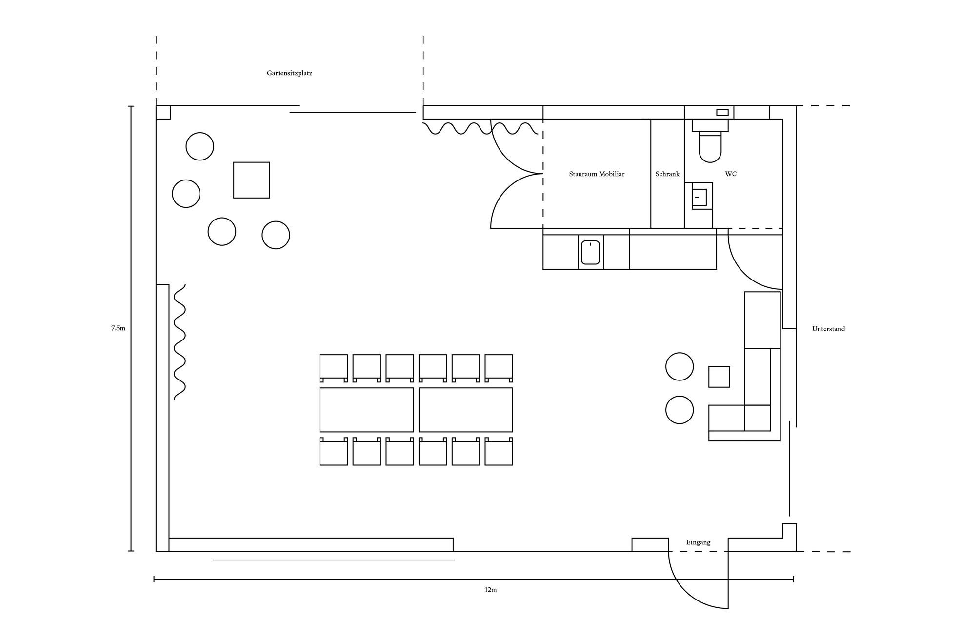
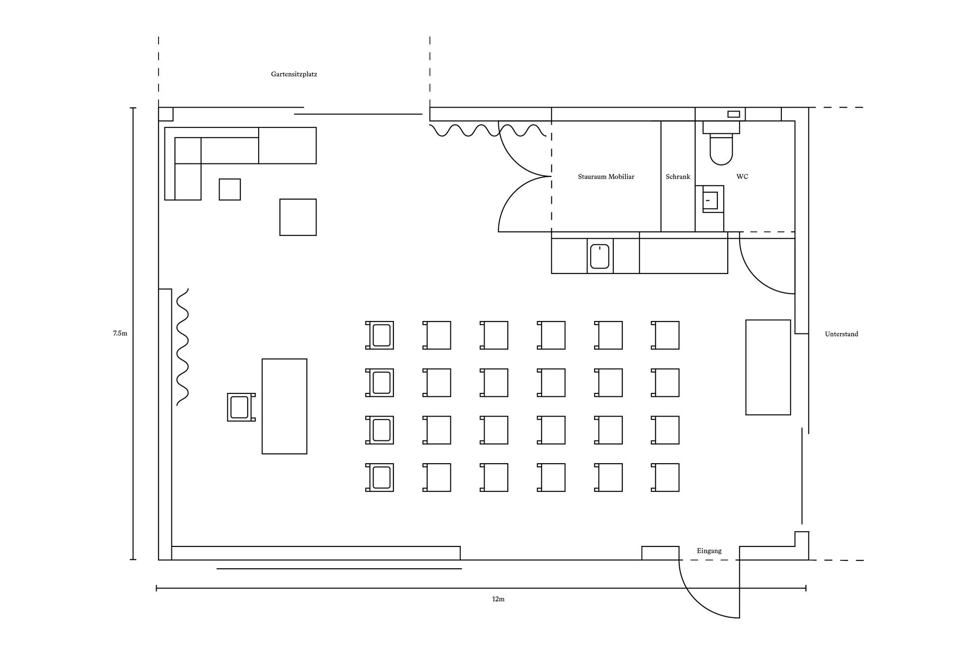
Mit 70 Qua­drat­me­tern bie­tet der Pa­vil­lon Platz für bis zu 40 Per­so­nen – ide­al für Work­shops, Mee­tings und klei­ne­re Kon­fe­ren­zen – und ist mit al­lem aus­ge­stat­tet, das es für ei­ne in­spi­rie­ren­de und ef­fi­zi­en­te Zu­sam­men­ar­beit braucht.

  • Tee- und Kaf­fee­kü­che
  • Ti­sche, Stüh­le, Loun­ge
  • Be­a­mer mit HD­MI-An­schluss
  • Pinn­wand, Flip­charts, Pa­pier, Stif­te
  • Prä­sen­ta­ti­ons­kof­fer
  • Mu­sik­an­la­ge (Nut­zung CHF 80)
  • Aus­sen­be­reich mit Feu­er­scha­le
  • Toi­let­te

Ta­ges­mie­te (Mo. – Fr.)

CHF 550.–

Halb­ta­ges­mie­te (Mo. – Fr.)

CHF 300.–

Be­stuh­lungs­va­ri­an­ten

Je nach An­for­de­run­gen ih­res An­las­ses sind ver­schie­de­ne Be­stuh­lungs­va­ri­an­ten mög­lich – von der U-Form über die Block­be­stuh­lung bis zur Thea­ter­be­stuh­lung. Ger­ne un­ter­stüt­zen wir Sie, die Pas­sen­de zu fin­den.

Bereit für einen Tapetenwechsel?

Suchen Sie einen besonderen Ort für einen Workshop, ein Meeting oder eine Konferenz? Gerne erstellen wir Ihnen eine individuelle Offerte und freuen uns, Sie bei uns zu begrüssen.

Häu­fi­ge Fra­gen zum Pa­vil­lon als Mee­ting- und Kon­fe­renz­raum

Kann der Konferenzraum für mehrere Tage gemietet werden?

Ja, der Pa­vil­lon eig­net sich auch für mehr­tä­gi­ge Kon­fe­ren­zen und Work­shops. In der Vil­la des Land­gut Hir­zel ste­hen da­für kom­for­ta­ble Über­nach­tungs­mög­lich­kei­ten für bis zu 12 Per­so­nen zur Ver­fü­gung.

Kann man den Meetingraum inklusive Verpflegung buchen?

In der Mie­te in­be­grif­fen sind Mi­ne­ral­was­ser, Kaf­fee und Tee. Für ku­li­na­ri­sche Ver­pfle­gung ste­hen in der Um­ge­bung meh­re­re Re­stau­rants zur Aus­wahl. Wir hel­fen Ih­nen ger­ne, das pas­sen­de aus­zu­wäh­len.

Gibt es Parkmöglichkeiten beim Meeting- und Konferenzraum?

Für un­se­re Gäs­te ste­hen auf dem Ge­län­de Park­plät­ze zur Ver­fü­gung. Das Land­gut Hir­zel ist zu­dem mit den öf­fent­li­chen Ver­kehrs­mit­teln er­reich­bar, wo­bei von der Bus­hal­te­stel­le Kir­che Hir­zel ein zehn­mi­nü­ti­ger Spa­zier­gang zum Land­gut Hir­zel führt.


Schliessen
S
M
L
XL
XXL